Objektart
Adresse
Objektdaten
Informationen
Ausstattung
Details
Ruhige Anliegerstraße ohne Durchgangsverkehr, direkte Feldrandlage, viel Grün: Hier wartet ein gepflegtes Reihenmittelhaus (Bj. 1994, Modernisierung 2016) auf seine neuen Bewohner. Ca. 126 m² Wohnfläche, ca. 47 m² Nutzfläche im Keller und ein großzügiges Grundstück von ca. 700m² - eine seltene Kombination aus Weite, Ruhe und Stadtnähe.
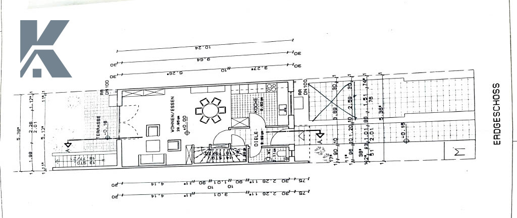
Im Erdgeschoss empfängt Sie eine helle Diele mit Gäste-WC. Der großzügige Wohn- und Essbereich öffnet sich mit großen Fensterflächen zum Garten - lichtdurchflutet, freundlich, mit direktem Terrassen- und Gartenzugang. Die Küche ist aktuell separat, kann aber zum offenen Wohnkonzept umgestaltet werden - ideal für modernes, kommunikatives Wohnen.
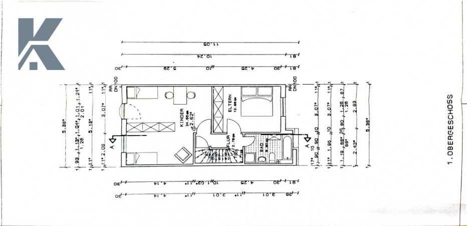
Im Obergeschoss: zwei gut geschnittene Schlafzimmer und ein helles Bad mit Wanne und Dusche. Das voll ausgebaute Dachgeschoss mit Gauben bietet als großes Studio viele Optionen: Elternbereich, Homeoffice, Gäste oder Rückzugsraum.
Der Keller mit ca. 47 m² Nutzfläche schafft Platz für Hauswirtschaft, Stauraum und Hobbys. Der weitläufige Garten am Feldrand ist das emotionale Highlight - perfekt für Familien, Gartenliebhaber und alle, die ins Grüne schauen wollen statt auf Häuserreihen. Ein Stellplatz direkt am Haus rundet das Angebot ab.
Einziehen, ankommen, durchatmen - ein Zuhause mit Seltenheitswert für alle, die Natur, Platz und gute Anbindung verbinden möchten.
Echtholzparkett in der ersten und zweiten Etage, glatt verputzte Wände resp. Malerflies, Gastherme aus 2022. Energie-Effizienzklasse B (72,32 kWh/(m²*a)
Alt-Meschenich, südwestlicher Kölner Stadtrand: ruhig, grün, familiär. Die Alte Brühler Straße 147 liegt in einer verkehrsberuhigten Anliegerstraße - entspanntes Wohnen, kurze Wege, hohe Sicherheit für Kinder.
Alles Wichtige ist nah: Supermärkte, Bäckereien, Apotheke, Ärzte und Kindergarten erreichen Sie bequem zu Fuß. Die nächste Bushaltestelle ist nur ca. 300 Meter entfernt und bringt Sie direkt Richtung Kölner Innenstadt, Hürth und Brühl.
Top angebunden: Mit der Stadtbahnlinie 18 geht es ohne Umstieg in die Kölner City (Barbarossaplatz, Neumarkt, Dom/Hbf) oder nach Bonn. Über die Autobahnen A4 und A555 ist das gesamte Rheinland schnell erreichbar, der Flughafen Köln/Bonn liegt nur rund 20 km entfernt.
Kurz gesagt: naturnah wohnen, ruhig leben - und trotzdem hervorragend angebunden zwischen Köln und Bonn.
Die Liegenschaft ist umgehend nach dem Kauf zum Bezug verfügbar.
Nutzen Sie noch heute diese attraktive Gelegenheit und vereinbaren Ihren individuellen Besichtigungs-Termin, um sich persönlich von dieser besonderen Immobilie auf traumhaftem Grundstück überzeugen zu lassen.
Ansprechpartner
Mobil: 00491773366410
jpkind@kindimmobilienkontor.de
Von Mensch zu Mensch. #Lösungsvermittler.
Energieausweis (Verbrauchsausweis)
72,32 kWh / (m²*a) Energieverbrauchskennwert
72,32 kWh / (m²*a) Energieverbrauchskennwert
72,32 kWh / (m²*a) Energieverbrauchskennwert
Weitere Informationen
| Wesentlicher Energieträger | GAS |
| Energieausweis gültig bis | 2035-10-29 |
| Energieausweis Jahrgang | ab dem 1.5.2014 |
| Energieausweis Werteklasse | B |
| Energieausweis Baujahr | 1994 |
| Energieausweis Gebäudeart | Wohngebäude |
| Heizung | Zentralheizung |
| Befeuerung | Gas |
Ich bin damit einverstanden, dass mir Karten von Google angezeigt werden. Es gelten die Datenschutzbedingungen von Google (https://policies.google.com/privacy).
Ich bin einverstanden